Slimdrive

Slimdrive SL-FR-RC2 * Porta scorrevole lineare automatica con sistema antieffrazione conforme alla classe di resistenza RC2

Slimdrive SL RC 2 Sistemi di porta scorrevole a anta singola o a due ante. porte esterne e interne con i più elevati requisiti di sicurezza. Certificato antieffrazione secondo la classe di resistenza RC 2 (Resistance Class). La funzione RC 2 è disponibile solo nella modalità “Notte” in cui la porta è bloccata sul bloccaggio con barra.
  • Funzione di via di fuga con automazione in versione ridondante
  • Protezione antieffrazione certificata conformemente alla classe di resistenza RC2 (Resistance Class)
  • Funzione RC2 disponibile solo in modalità di esercizio "Notte", quando la porta non deve più soddisfare i criteri di via di fuga
  • Dotato di bloccaggio con barra e componenti di profilo rafforzate
  • Automazione molto silenziosa a corrente continua e bassa usura, alto solo 7 cm
  • Connettività e integrabilità tramite standard aperto (BACnet) nella Building automation
Mostra altro
  • Autoriconoscimento e memorizzazione errori indipendente
  • Ingressi ed uscite configurabili per svolgere diverse funzioni
  • Batteria ricaricabile integrata per l'apertura d'emergenza in caso di errori riguardanti la sicurezza come ad esempio mancanza di corrente
Contattaci

Campi di applicazione

  • Sistemi di porte scorrevoli a una e a due ante lungo vie di fuga e uscite di sicurezza
  • Porte interne ed esterne con elevati requisiti di sicurezza
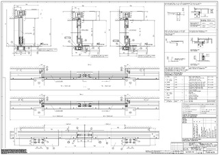
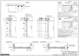
  • Possibili larghezze di apertura da 800 a 3000 mm
  • Pesi delle ante fino a 120 kg per anta
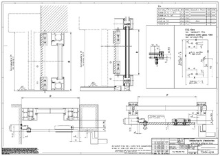
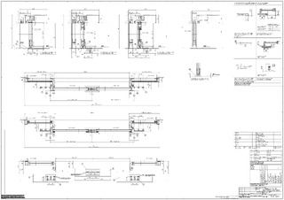
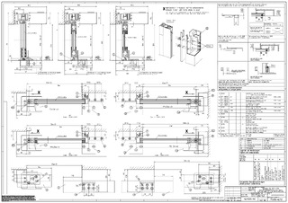
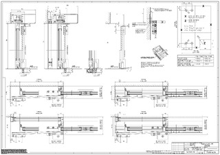
  • I sistemi di profili adatti sono sistemi con telaio sottile con ISO-Glas e Mono-Glas conformi alla classe di resistenza 2 (RC2)

Specifiche del prodotto

Slimdrive SL-FR-RC2
Per sistemi di porte a 1'anta
Per sistemi di porte a 2 ante
ISO-Glas intelaiato con precisione
ISO – Profilo con sezione da 30 mm
Altezza 70 mm
Profondità 190 mm
Peso anta (max.) 1 anta 120 kg
Peso anta (max.) a 2 ante 120 kg
Vano di apertura a 1 anta 800 mm - 3000 mm
Angolo di apertura a 2 ante 900 mm - 3000 mm
Temperatura di esercizio -15 - 50 °C
Tipo di protezione IP20
Separazione dalla rete Interruttore generale nell'automazione
Conformità alle norme AutSchR, DIN 18650, DIN EN ISO 13849: Performance Level D, EN 16005

Download

Varianti e accessori

Contatti

GEZE Central +39-039-9530-401 GEZE Service +39-039-9530-456