Braccio a slitta E-ISM Boxer, anta passiva piccola * Per anta passiva a partire da 420 mm, con meccanismo integrato di controllo chiusura, blocco elettrico sui due lati e leve
- Tensione di alimentazione 24 V DC
- Forza di tenuta del blocco elettromeccanico regolabile in continuo
- Il meccanismo integrato di controllo chiusura mantiene l'anta attiva in posizione di attesa fino alla chiusura dell'anta passiva
- Protezione antivandalismo mediante il tirante flessibile
- Posa flessibile del meccanismo di sgancio a tirante flessibile nel telaio, ad es. con blocco anta fissa
- Pochi componenti singoli e rapida regolazione, quindi tempi e costi di montaggio ridotti
Campi di applicazione
- Porte a due ante con meccanismo integrato di controllo chiusura
- Sistemi di blocco con funzione di blocco in aperto integrata
- Montaggio integrato
- Porte a battente destro e sinistro
- Divisione simmetrica o asimmetrica della porta
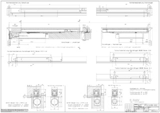
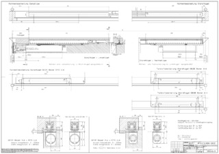
- Sporgenza cerniere minima 1230 mm, larghezza minima dell'anta passiva 420 mm
Specifiche del prodotto
| Braccio a slitta E-ISM Boxer, anta passiva piccola | |
| Tensione di ingresso | 24 V DC |
| Sporgenza cerniere min. | 1230 mm |
| Larghezza min. anta passiva | 420 mm |
| Conformità alle norme | EN 1155, EN 1158 |
| Larghezza | 31 mm |
| Altezza | 30 mm |
| Funzione di blocco in apertura | elettricamente |
| Fermo inseribile/disinseribile | Sì |
| Fermo calpestabile | Sì |
| Campo di regolazione | 80 ° - 90 ° |
| Regolazione sequenza di chiusura integrata | Sì |
| Limite di apertura flessibile | Sì |
Download
LABELLING OBLIGATION: © GEZE GmbH
Varianti e accessori
* Avviso sui prodotti esposti
I prodotti menzionati sopra possono variare nella forma, nella tipologia, nelle caratteristiche e nella funzione (design, dimensioni, disponibilità, approvazioni, standard ecc.) a seconda del paese. Per qualsiasi domanda, contattate il vostro contatto GEZE o inviateci E-Mail .